نبذة عن المشروع
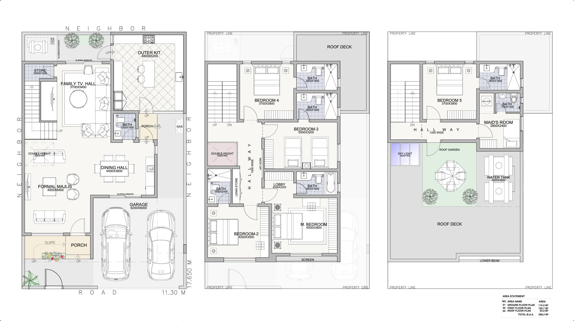
يعتبر مشروع نسايم عراد أحد أبرز المشاريع السكنية الحديثة التي تطورها شركة نسيج في مملكة البحرين، ويقع في قلب خليج عراد بمحافظة المحرق. يمتد المشروع على مساحة إجمالية تبلغ 130,000 متر مربع ويقدم مفهوماً جديداً للسكن الميسر من خلال الفلل الذكية التي تجمع بين التصميم العصري والاستدامة والمساحات القابلة للتوسع لتلبية احتياجات الأسرة البحرينية العصرية.
رؤية المشروع
يهدف مشروع نسايم عراد إلى إعادة تعريف مفهوم السكن الميسر في مملكة البحرين من خلال تقديم منازل ذكية تجمع بين الحداثة والجودة والمرونة، بما يواكب احتياجات الأجيال الحالية والمستقبلية، ويعزز من جودة الحياة داخل المجتمعات السكنية.